Gervais, Un expert de la quincaillerie et de l'industrie
1Livraison 24/48h dans toute la France
Bénéficiez des frais de port offerts pour toute commande supérieure à 29€ ht. Bénéficiez des frais de port offerts pour toute commande supérieure à 29€ ht.
Cuisines
De la conception à la réalisation
.
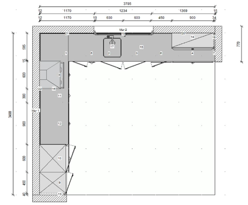
Conception
Nous concevons votre cuisine, après renseignement des dimensions de votre pièce, le choix de vos meubles, le plan de travail, les types de façades, les types de charnières...
Nous avons également la possibilitée de vous fournir l'électroménager.
.
Chiffrage
Un premier chiffrage de votre cuisine vous sera envoyé ainsi que les plans et les visuels. En fonction des modifications éventuels de votre client un devis final sera réalisé.
.
Prêt à assembler et à poser
Une fois la commande validée, vous recevrez votre cuisine dans un délai de 4 à 5 semaines. Les différents éléments constituant votre cuisine arriveront dans des colis séparés et protégés. Il ne manque plus que la pose chez votre client final.
.

.
.
.

